This is a full set of 21 pages of plans for one house! Yes, 21 pages! Wait until you see what's SUPPOSED to be included in a great set of plans.
These sample plans (now available for immediately download in Adobe Reader PDF format) were created by an AIA architect who drew the best plans I ever worked on when I was building. It was a joy to work from his plans, because they had so much detail. As the builder on the job, I rarely had to make a phone call. I KNEW what to do as the information was on the plans. You need to make sure your plans are similar to these with respect to how much information is presented. It's mission critical, and it avoids arguments between you and the builder.
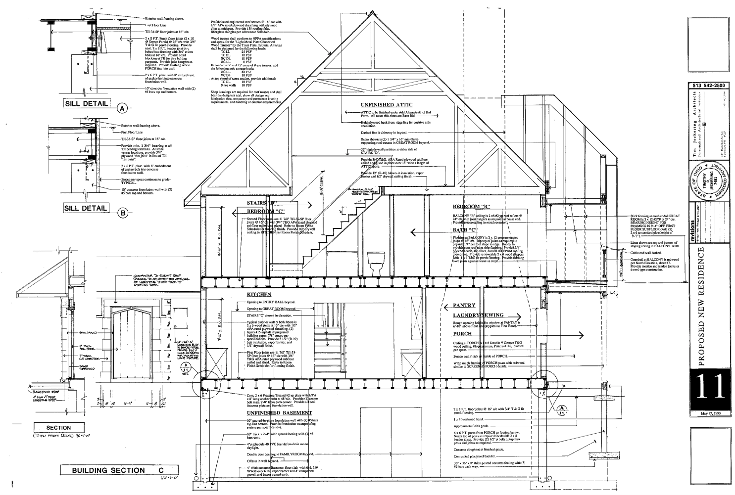
The plans are REDUCED in size so it's nearly impossible to read the notes on the plans. But that's NOT important. I've included one page of these SAMPLE PLANS below. It's a cross section to show the structure should you have a giant chain saw and cut the house in half from top to bottom.You need to see all 21-pages so you can grasp all of the tables, schedules, floor plans, site plans, exterior and interior elevations, countless close-up details, etc that SHOULD BE ON YOUR PLANS.
The wording on these plans is only valuable if you were to build the EXACT house. You just need to see the tremendous amount of content, words, notes, etc. that should be on a set of excellent blueprints.
You'll NEVER regret purchasing these Sample Plans! These plans will save you thousands of dollars in change orders, and mistakes by your builder.
- Disagreements between you and your contractor
- Burst Budgets!
- Delays
- Unpleasant Surprises
- Arguments
- Possible COSTLY Lawsuits
Avoid these nightmares by using the best plans. Your blueprints are the primary communication tool used to tell both your builder and all subcontractors how your house should be. You can't rely on verbal or spoken instructions!
AsktheBuilder Sample Blueprints INCLUDE:
- 21 Pages of Superior Plans drawn by a licensed architect
- REAL Plans used to construct an ACTUAL house in Cincinnati, Ohio
- Reduced format
- Illustrate ALL of the plan components you NEED on your plans
- Site plan
- Foundation plan
- Exterior & Interior Elevations
- Multiple Cross Sections
- Numerous details showing enlarge drawings of critical finish materials
- Electrical Plan
- Mechanical Plan
- Room Finish Schedule
- Plumbing Fixture Schedule
- Door and Window Schedule
- Allowance Schedule
- Appliance Schedule

- Specifications
- Allows you to QUICKLY spot deficiencies in your plans BEFORE you start your project
- Use as a guideline to help you draft your own plans
These plans are sent immediately in PDF format. You will need Adobe Reader to open the PDF file. Once downloaded and saved on your computer, you can view the sample blueprints. By zooming in on areas of each page you can see the vast amount of notes and details.

